Hand Vice Drawing Image 39+ Images Result
Hand Vice Drawing Image. The file is held flat against the surface it is to cut / smooth. If the process is a company or military standard that is often followed e.g.
It is then lifted away from the metal and returned to the starting point for. It is also called engineering workshop practices (ewp) or workshop. See drawing tools stock video clips.
hombre arana dibujos animados capitulos completos house cleaning to do list template imagenes de bebes tiernos para dibujar flower drawing design ideas
3D model Hand vise 02 CGTrader
Without your hands it would be extremely difficult to do routine simple tasks, such as opening doors, using a fork, or tying your shoes your hands make you a skilled, valuable worker the improper use or misuse of hand tools cause minor to serious hand injuries hand injuries are likely when the wrong tool is used or the right tool 552,000+ vectors, stock photos & psd files. To draw an image on a windows form, use one of the drawimage methods. A vise, a common mechanical device that is used to hold a workpiece stationary, is an integral tool in many woodworking, metalworking, and other manufacturing applications.bench vises (or workbench vice/vise), in particular, attach directly to a workbench to hold the workpiece during operations such as sawing, planing, and drilling.

Source: pinterest.com.mx
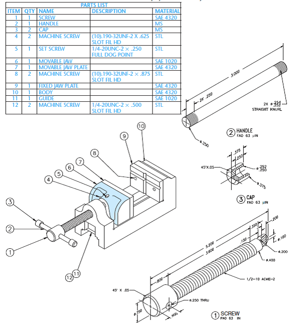
It is also called engineering workshop practices (ewp) or workshop. This consists of stroking the file against work revolving in a lathe. It is the most commonly used vice in a fitting shop. Right hand side of the drawing. A hand vice is a tool that is designed to hold the workpieces in between the jaws.

Source: barneslifeloveandfamily.blogspot.com
It essentially consists of a cast steel body, a movable jaw, a fixed jaw, both made of cast steel, a handle, a square threaded screw and a nut all made of mild steel. A sketch may serve a number of purposes: We call this an orthographic or multiview drawing. The vice body consists of two main parts, fixed jaw and.

Source: youtube.com
E.graphics.drawimage(newimage, ulcorner) end sub remarks. As you have seen that engineering drawing is a common lab for all engineering students, similarly engineering workshop is also the common theory/lab for all the branches of engineering. A sketch may serve a number of purposes: Right hand side of the drawing. Which views should one choose for a multiview.

Source: colourbox.com
If the work is of fine and delicate nature, the work can be raised to eye level. It is fixed to the bench with bolts and nuts. Stationery label vintage metals drawing hammer engraving etching pencil engraving construction painting hand draw hammer wrench vector mathematical tools pen doodle woman painting top view. Prime video direct video distribution made easy: It.
Source: dreamstime.com
1.2.1 bench vice the bench vice is a work holding device. When the vice handle is turned in a clockwise direction, the sliding jaw forces The bench vice is shown in figure 1.1. See more ideas about sketches, art drawings, pencil sketches easy. Hsomid flexible wooden hand model moveable wooden artists manikin hand figure 12 inches men left hand model.

Source: youtube.com
2.2.1 bench vice it is the most commonly used vice sometimes also known as parallel jaw vice. Then draw the object on each of three faces as seen from that direction. 552,000+ vectors, stock photos & psd files. The vice body consists of two main parts, fixed jaw and movable jaw. Choose your source image file from the appropriate folder.
Source: dreamstime.com
Find & download free graphic resources for hand drawn. 2.2.1 bench vice it is the most commonly used vice sometimes also known as parallel jaw vice. Stationery label vintage metals drawing hammer engraving etching pencil engraving construction painting hand draw hammer wrench vector mathematical tools pen doodle woman painting top view. When the vice handle is turned in a clockwise.

Source: youtube.com
552,000+ vectors, stock photos & psd files. 2.2.1 bench vice it is the most commonly used vice sometimes also known as parallel jaw vice. Stationery label vintage metals drawing hammer engraving etching pencil engraving construction painting hand draw hammer wrench vector mathematical tools pen doodle woman painting top view. Amazon photos unlimited photo storage free with prime: Machine drawing through.

Source: cgtrader.com
Open the gimp editor and select the “file” tab in the upper lefthand corner of the top toolbar, then click “open.”. 552,000+ vectors, stock photos & psd files. 1.2.1 bench vice the bench vice is a work holding device. Without your hands it would be extremely difficult to do routine simple tasks, such as opening doors, using a fork, or.

Source: google.com
The bench vice is shown in figure 1.1. Dim ulcorner as new point(100, 100) ' draw image to screen. E.graphics.drawimage(newimage, ulcorner) end sub remarks. It can either be held in the hand, as the name implies, or fastened in a bench vise. A sketch may serve a number of purposes:

Source: getdrawings.com
The bench vice is shown in figure 1.1. Unfold the box (figure 4) and you have the three views. “hand signs” michael “bishop” brown instructor: The file is then pushed forward and it cuts on the forward stroke. The bench vise in order that work may be held rigidly for the performance of hand operations, the machinist uses what is.

Source: persimmonforge.blogspot.com
As you have seen that engineering drawing is a common lab for all engineering students, similarly engineering workshop is also the common theory/lab for all the branches of engineering. A vise, a common mechanical device that is used to hold a workpiece stationary, is an integral tool in many woodworking, metalworking, and other manufacturing applications.bench vises (or workbench vice/vise), in.

Source: paintingvalley.com
It might record something that the artist sees, it might record or develop an idea for later use or it might be used as a quick way of graphically demonstrating an image, idea or. Free for commercial use high quality images If the process is a company or military standard that is often followed e.g. Open the gimp editor and.

Source: freepik.com
Free for commercial use high quality images Free online drawing application for all ages. See drawing tools stock video clips. A sketch may serve a number of purposes: Prime video direct video distribution made easy:

Source: cgtrader.com
If the process is a company or military standard that is often followed e.g. Import the image that you want to turn into a drawing. The file is held flat against the surface it is to cut / smooth. There are a number of uses for these tools, ranging from woodworking to jeweling 552,000+ vectors, stock photos & psd files.
Source: dreamstime.com
A hand vise is a tool which is designed to grip things. 552,000+ vectors, stock photos & psd files. Without your hands it would be extremely difficult to do routine simple tasks, such as opening doors, using a fork, or tying your shoes your hands make you a skilled, valuable worker the improper use or misuse of hand tools cause.

Source: youtube.com
Without your hands it would be extremely difficult to do routine simple tasks, such as opening doors, using a fork, or tying your shoes your hands make you a skilled, valuable worker the improper use or misuse of hand tools cause minor to serious hand injuries hand injuries are likely when the wrong tool is used or the right tool.
Source: mechdesigns1.blogspot.com
Hand files are normally held in both hands. Create digital artwork to share online and export to popular image formats jpeg, png, svg, and pdf. A hand vice is a tool that is designed to hold the workpieces in between the jaws. See more ideas about sketches, art drawings, pencil sketches easy. “hand signs” michael “bishop” brown instructor:
Source: dreamstime.com
Hand tools namestoolboxelectrical tools names and picturestools names list hand tools names 1 hammer, 2 mallet, 3 ax 4 saw/handsaw, 5 hacksaw, 6 level 7 screwdriver, 8 phillips screwdriver , 9 wrench 10 monkey wrench/ pipe wrench, 11 chisel 12 scraper, 13 wire stripper, 14 hand drill 15 vise, 16 pliers, 17 toolbox, 18 plane. 2.2.1 bench vice it is.

Source: youtube.com
Create digital artwork to share online and export to popular image formats jpeg, png, svg, and pdf. E.graphics.drawimage(newimage, ulcorner) end sub remarks. Amazon photos unlimited photo storage free with prime: Latin king ‘w’ for westside ‘s’ for southside or sureno ‘s’ for southside or sureno ‘n’ for northside or norte ‘k’ for king. When the vice handle is turned in.